Appartement neuf Saint Jean De Monts 2 pièce(s) 46.15 m²
Référence: 335.1Résumé
- Mis à jour le :
- 20 avril 2026
- 1 Chambre
- 46 m2
- 2025
Agence du Littoral vous présente :
Vous rêvez de vivre au bord de la mer ? Ne cherchez plus ! Cet appartement lumineux et
spacieux est situé sur le remblai. Doté d’un balcon privé, c’est l’endroit idéal pour profiter des couchers de soleil et de l’air marin. De plus, vous bénéficierez d’un parking privé, un
avantage précieux dans cette zone animée.
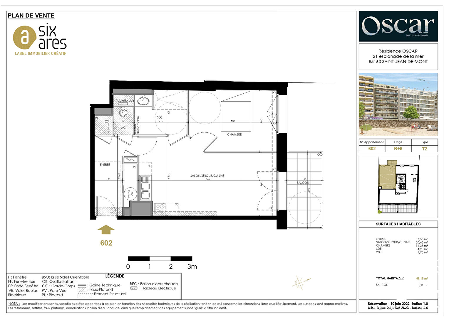
Cet appartement se compose d’un séjour avec une cuisine, d’une chambre, d’une salle d’eau, et de WC séparés.
Le Prêt Locatif Social est destiné aux propriétaires souhaitant louer leur bien immobilier à
titre de résidence principale.
Ref : 335.1
Agence du Littoral – Agence du Littoral – Agence immobilière à votre service sur le secteur de Saint-Jean-de-Monts et ses alentours.
Contactez-nous au 02.51.59.17.70.
Géorisques
Les informations sur les risques auxquels ce bien est exposé sont disponibles sur le site Géorisques : www.georisques.gouv.fr















